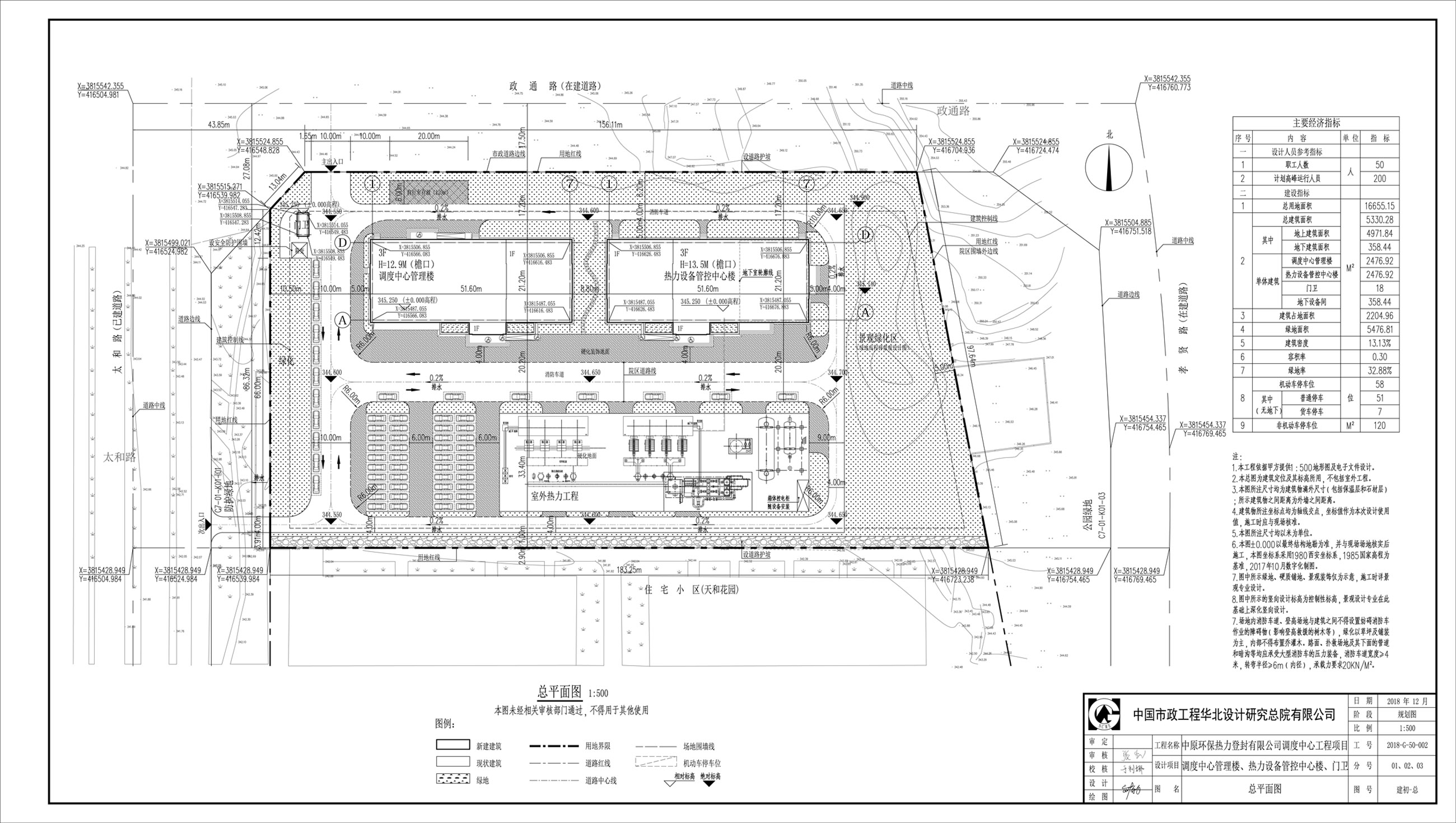
项目名称: 中原环保热力调度中心
类 型: 批前公示
公示类别: 建设工程(建筑)规划许可证公示
建设地点: 登封市太和路与政通路交叉口东南角
用地面积: 16655.15㎡
总建筑面积:5330.28㎡
建筑密度:13.13%
容 积 率: 0.30
绿 地 率: 32.88%
机动车停车位:58个
公示期限: 10日
公示日期: 2019年5月5日至2019年5月14日
经办科室: 行政服务科
咨询电话: 62865928
附加说明: 依据《城乡规划法》、《行政许可法》、《河南省城市规划公示制度》等有关法律法规,特此公示。如有意见和建议,请于公示时间内向我局反馈
详细内容: 总平面图、鸟瞰图(双击图片查看大图)

