繁體
登录
588550782/2017-00075
登封市城乡规划局
城市规划
2017-12-05
2017-12-05
2017-12-05
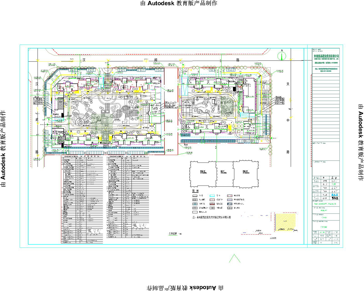
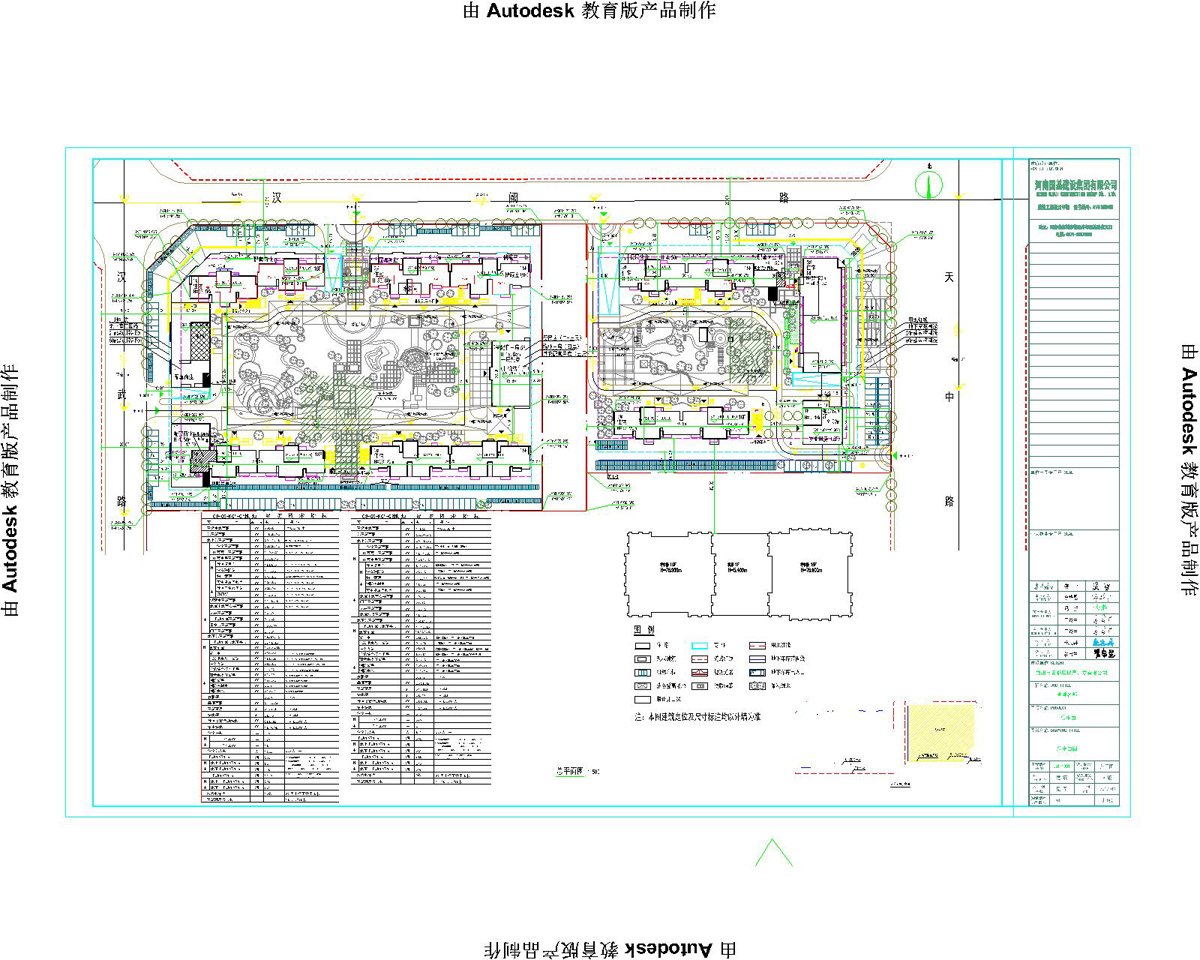
尚城名都(二期)建设工程规划许可证证后公告
(点击图片查看大图)
主办单位:登封市人民政府办公室
地址:登封市少林大道18号
邮编:452470
网站标识:4101850001
豫ICP备05011850号-1
豫公网安备 41018502000165号