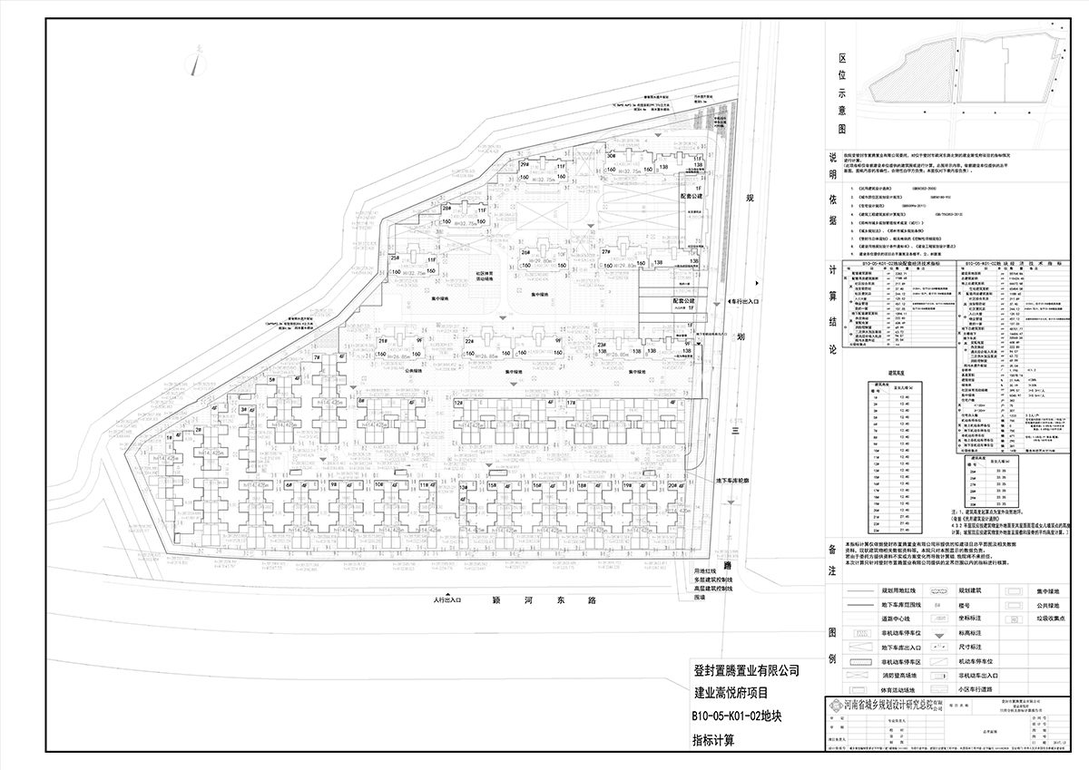
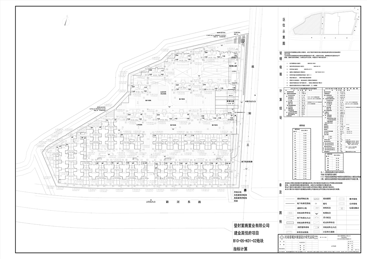
公示信息:
项目名称: 建业嵩悦府(西地块)
类 型: 批前公示
公示类别: 建设工程(建筑)规划许可证公示
建设单位: 登封置腾置业有限公司
用地位置: 登封市颍河路与规划三路交叉口西北角
用地面积: 55764.86平方米
建筑面积: 115516.73㎡
建筑高度: <36M
建筑密度: 27.94%
容 积 率: 1.196
绿 地 率: 30.19%
公示期限: 10日
公示日期: 2017年12月29日至2018年1月12日
经办科室: 登封市城乡规划局行政服务科
咨询电话: 62865928
附加说明: 依据《城乡规划法》、《行政许可法》、《河南省城市规划公示制度》等有关法律法规,特此公示。如有意见和建议,请于公示时间内向我局反馈。
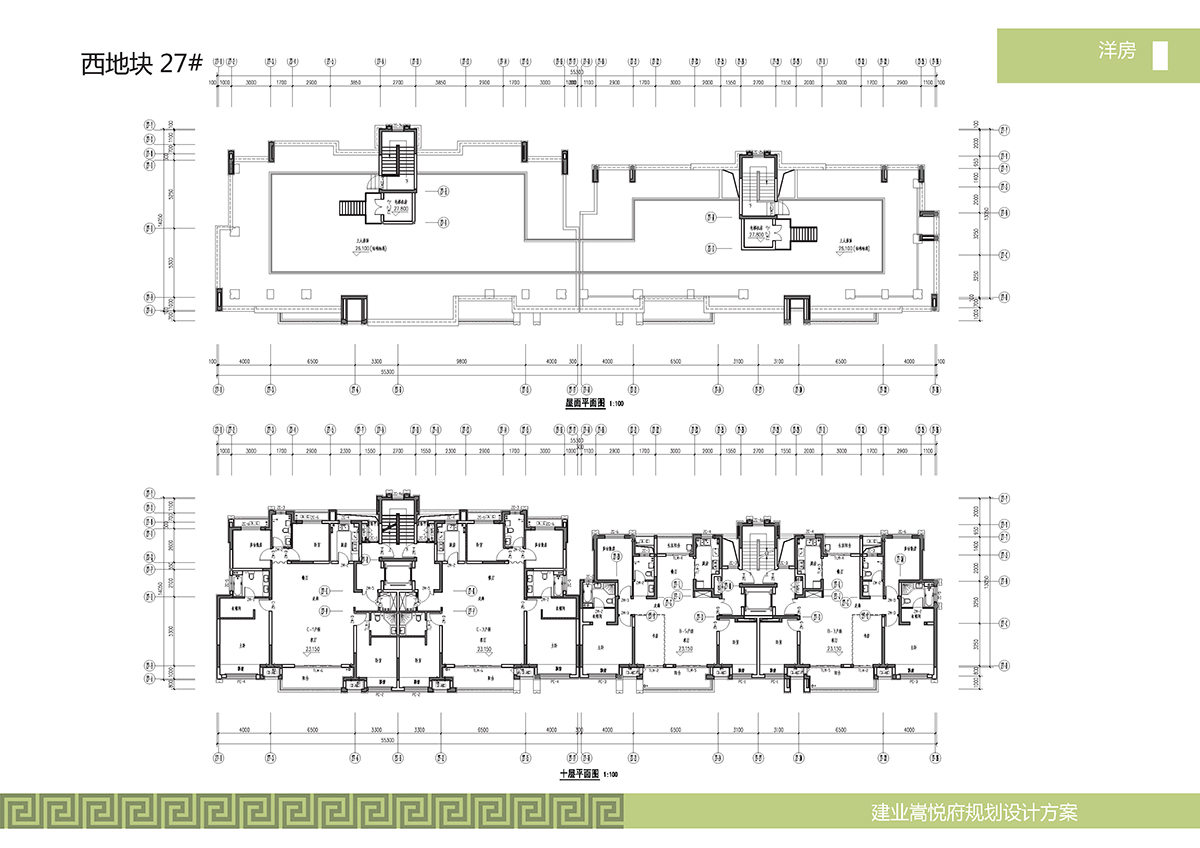
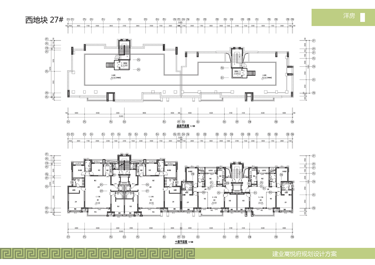
详细内容: 总平面图,日照分析图,立面图,平面图,效果图
