登封市外国语高级中学(一期)项目建设工程规划许可证批前公示
项目名称: 登封市外国语高级中学(一期)项目
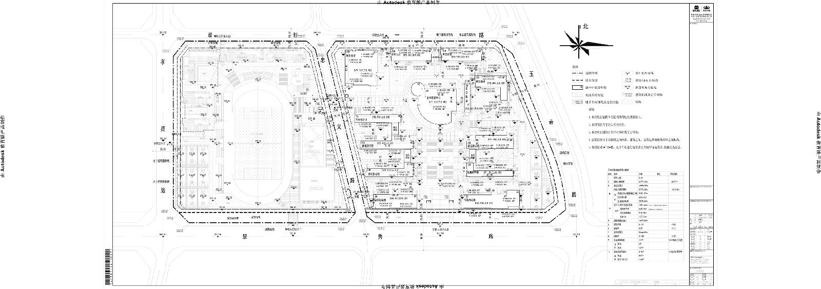
类 型: 批前公示
公示类别: 建设工程(建筑)规划许可证公示
建设单位: 登封市建设投资集团有限公司
建设地点: 登封市翠秀路与玉带路交叉口西北角
用地面积: 68177.16㎡
总建筑面积: 68396.923㎡
建筑基地面积:16572.00㎡
地上总建筑面积:57975.38㎡
建筑密度: 24.31%
容 积 率: 0.89
绿 地 率: 37.48%
公示期限: 10日
公示日期: 2018年7月17日至2018年7月27日
经办科室: 登封市城乡规划局行政服务科
咨询电话: 62865928
附加说明: 依据《城乡规划法》、《行政许可法》、《河南省城市规划公示制度》等有关法律法规,特此公示。如有意见和建议,请于公示时间内向我局反馈。
详细内容: 总平面图,日照分析图,鸟瞰图,效果图



