项目名称: 正商城禧园
类 型: 批前公示
公示类别: 建设工程(建筑)规划许可证公示
建设单位: 河南正商中岳置业有限公司
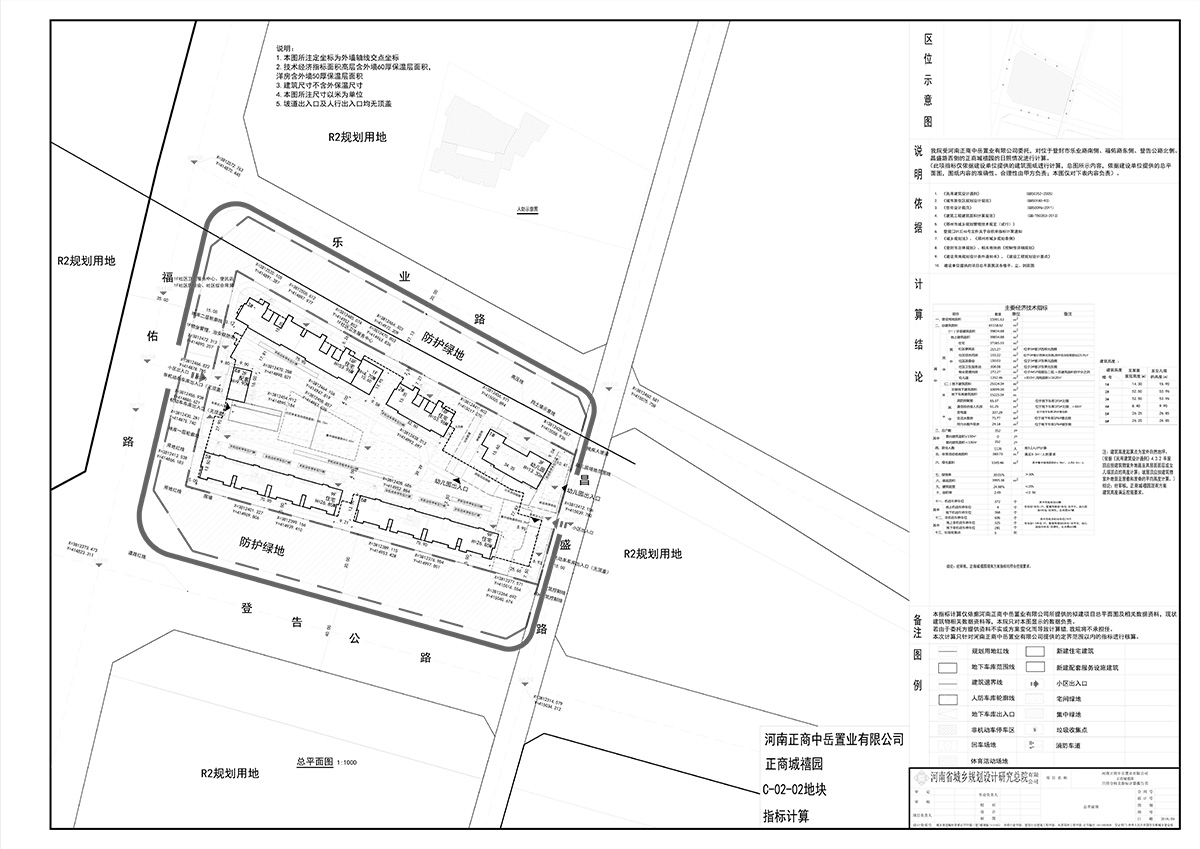
建设地点: 登封市登告公路与福佑路交叉口东北角
用地面积: 15991.63㎡
总建筑面积:65158.92㎡
建筑基地面积:3995.38㎡
建筑密度: 24.98%
容 积 率: 2.49
绿 地 率: 30.05%
机动车停车位: 372
公示期限: 10日
公示日期: 2018年9月29日至2018年10月9日
经办科室: 登封市城乡规划局行政服务科
咨询电话: 62865928
附加说明: 依据《城乡规划法》、《行政许可法》、《河南省城市规划公示制度》等有关法律法规,特此公示。如有意见和建议,请于公示时间内向我局反馈。
详细内容: 总平面图,日照分析图,鸟瞰图


