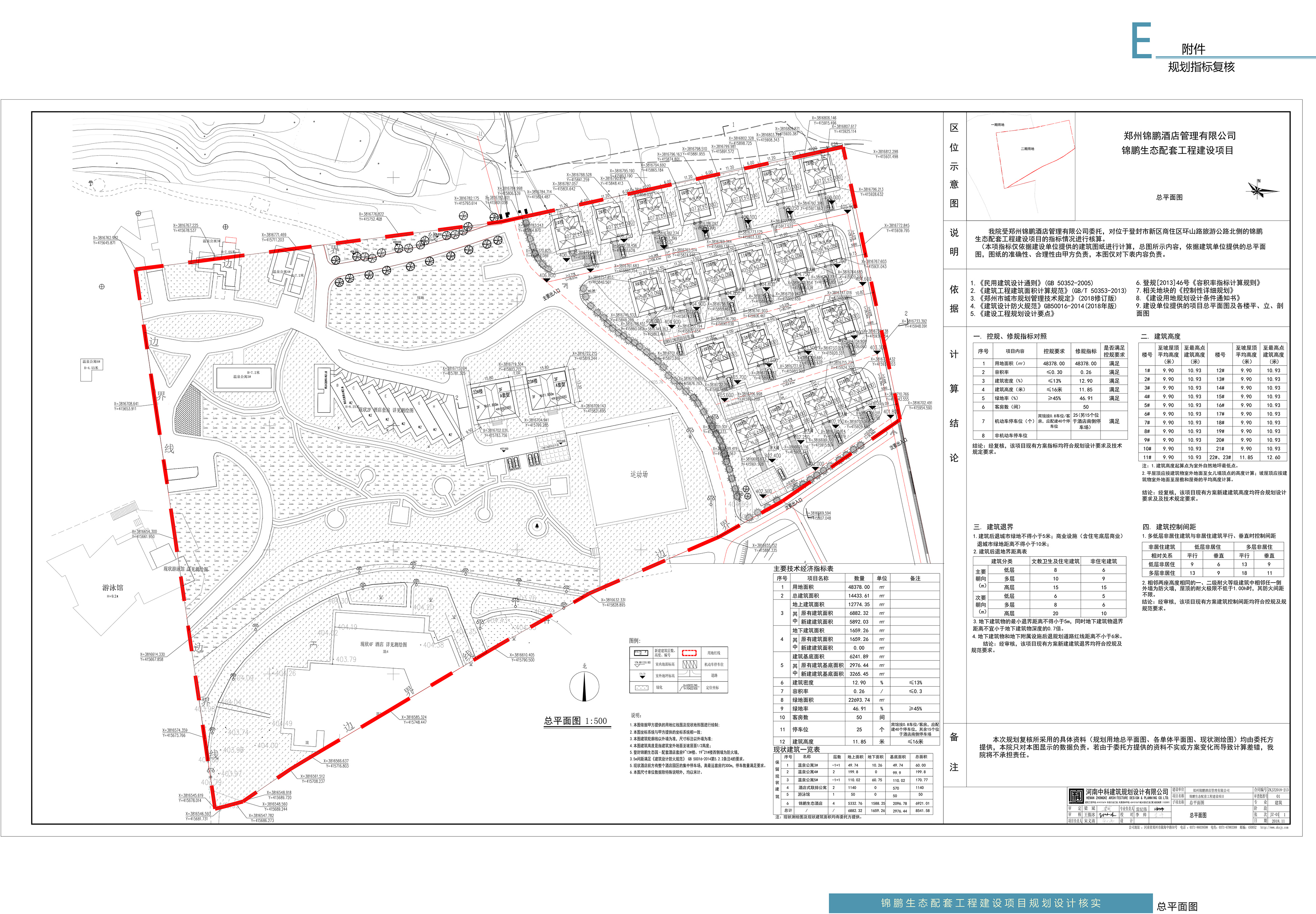
项目名称: 锦鹏生态园配套工程
类 型: 批前公示
公示类别: 建设工程(建筑)规划许可证公示
建设单位: 郑州锦鹏酒店管理有限公司
建设地点: 登封市中岳办事处北高庄村北
用地面积: 48378㎡
总建筑面积:14433.61㎡
本次报建面积:5892.03㎡
建筑基地面积:3265.45㎡
建筑密度: 12.9%
容 积 率: 0.26
绿 地 率: 46.91%
机动车停车位: 25个
公示期限: 10日
公示日期: 2018年11月20日至2018年11月30日
经办科室: 登封市城乡规划局行政服务科
咨询电话: 62865928
附加说明: 依据《城乡规划法》、《行政许可法》、《河南省城市规划公示制度》等有关法律法规,特此公示。如有意见和建议,请于公示时间内向我局反馈。
详细内容: 位置图、总平面图、鸟瞰图(双击图片查看大图)
