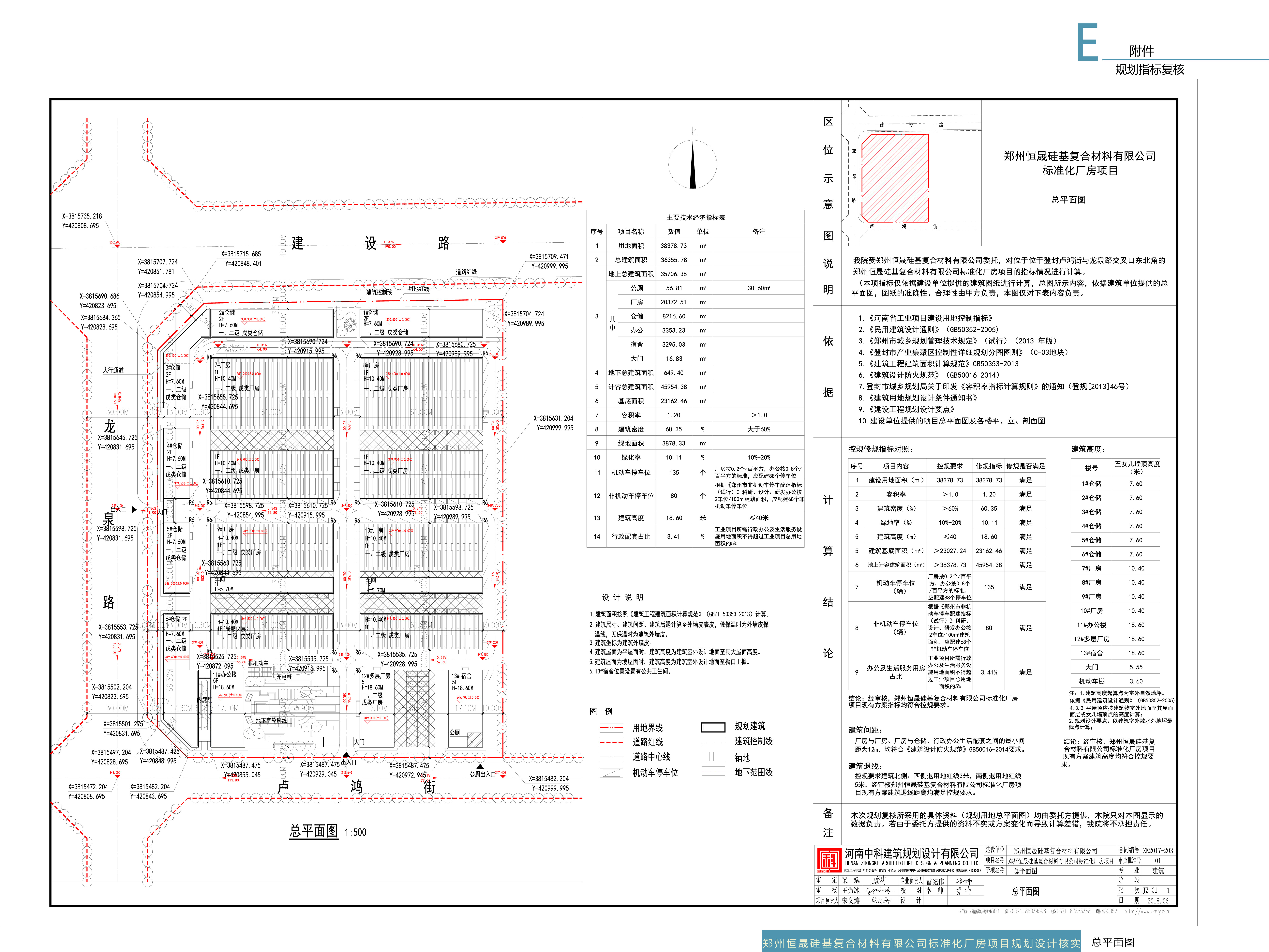
项目名称: 年产1000吨硅基复合材料及800台工业电炉项目
类 型: 批前公示
公示类别: 建设工程(建筑)规划许可证公示
建设单位: 郑州恒晟硅基复合材料有限公司
建设地点: 登封市产业集聚区建设路于龙泉路交叉口东南角
用地面积: 38378.73㎡
总建筑面积:36355.78㎡
本次报建面积:8509.5㎡(7#、9#厂房)
建筑基地面积:8113㎡
建筑密度: 60.31%
容 积 率: 1.197
绿 地 率: 10.11%
机动车停车位: 135个
公示期限: 10日
公示日期: 2019年2月14日至2019年2月23日
经办科室: 行政服务科
咨询电话: 62865928
附加说明: 依据《城乡规划法》、《行政许可法》、《河南省城市规划公示制度》等有关法律法规,特此公示。如有意见和建议,请于公示时间内向我局反馈。
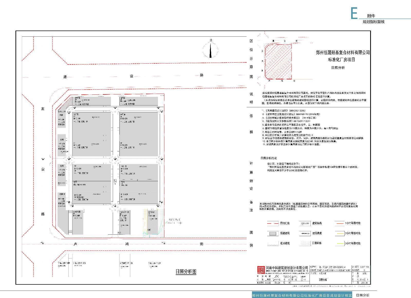
详细内容: 总平面图、日照分析图、鸟瞰图(双击图片查看大图)
