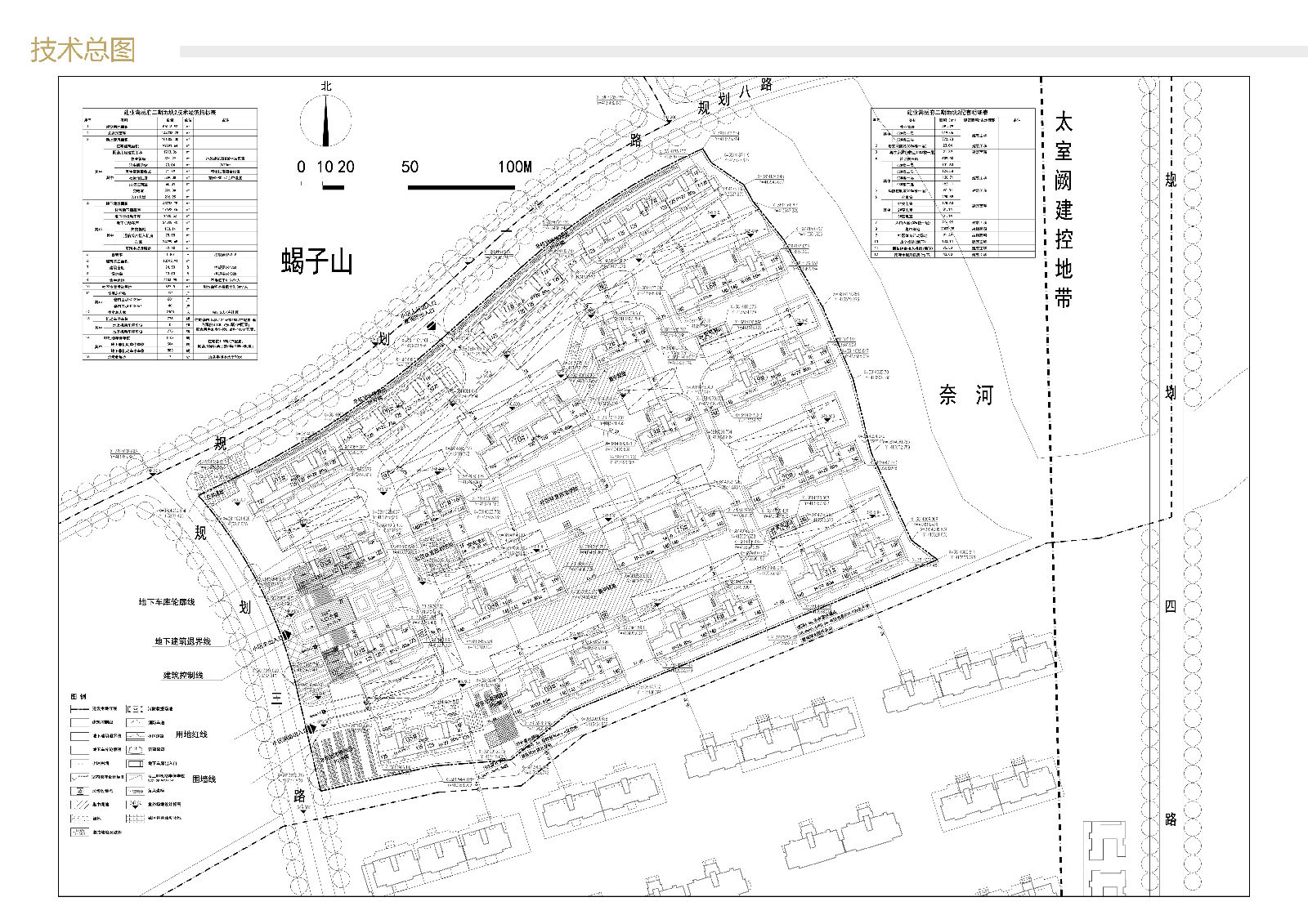
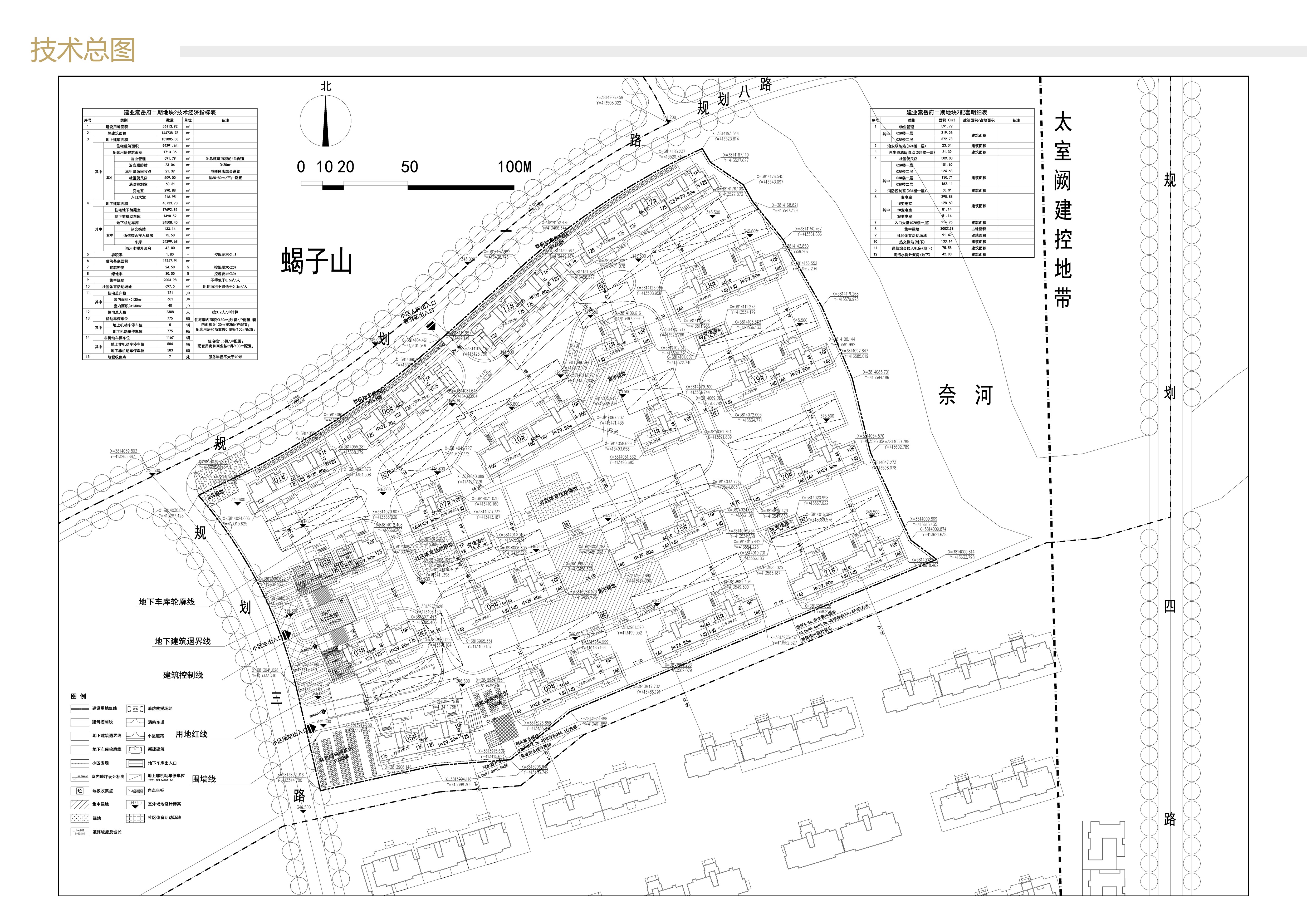
项目名称: 建业嵩岳府二期地块2
类 型: 批前公示
公示类别: 建设工程(建筑)规划许可证公示
建设地点: 登封市颍河路以北蝎子山东南区域
用地面积: 56113.92㎡
总建筑面积:146339.59㎡
建筑密度: 24.5%
容 积 率: 1.8
绿 地 率: 30.5%
机动车停车位:775个
公示期限: 10日
公示日期: 2019年5月30日至2019年6月8日
经办科室: 行政服务科
咨询电话: 62865928
附加说明: 依据《城乡规划法》、《行政许可法》、《河南省城市规划公示制度》等有关法律法规,特此公示。如有意见和建议,请于公示时间内向我局反馈
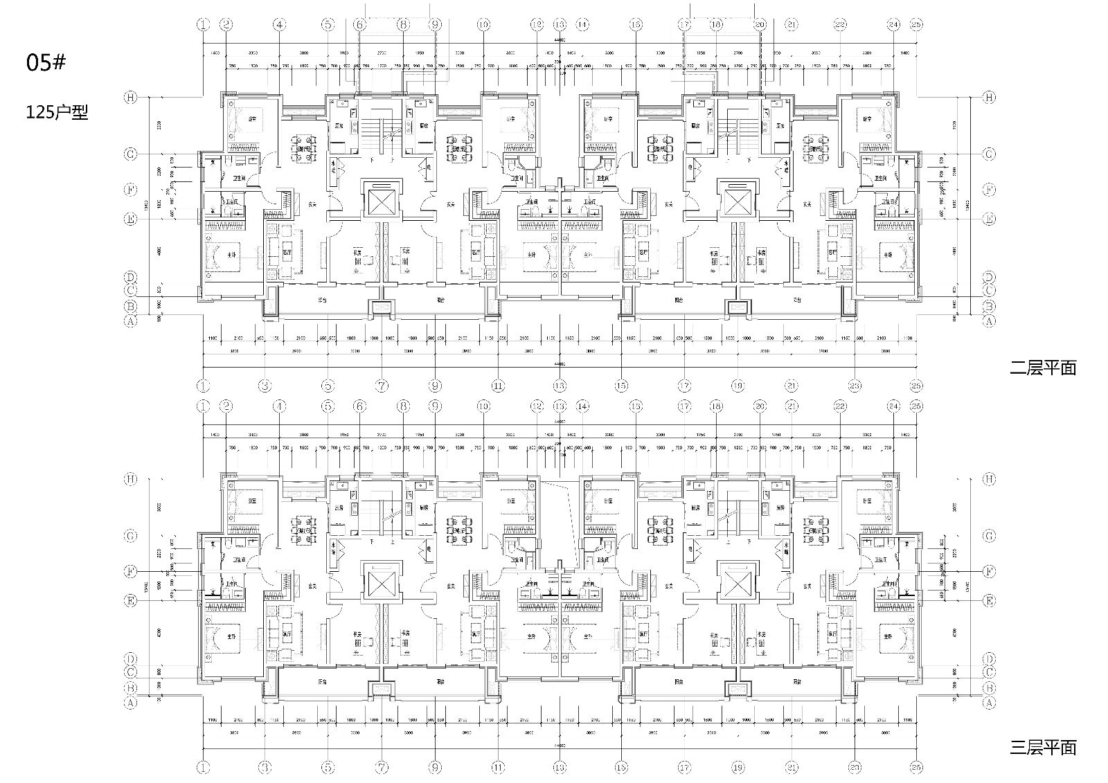
详细内容: 总平面图、鸟瞰图、日照分析、平面图、立面图(双击图片查看大图)

