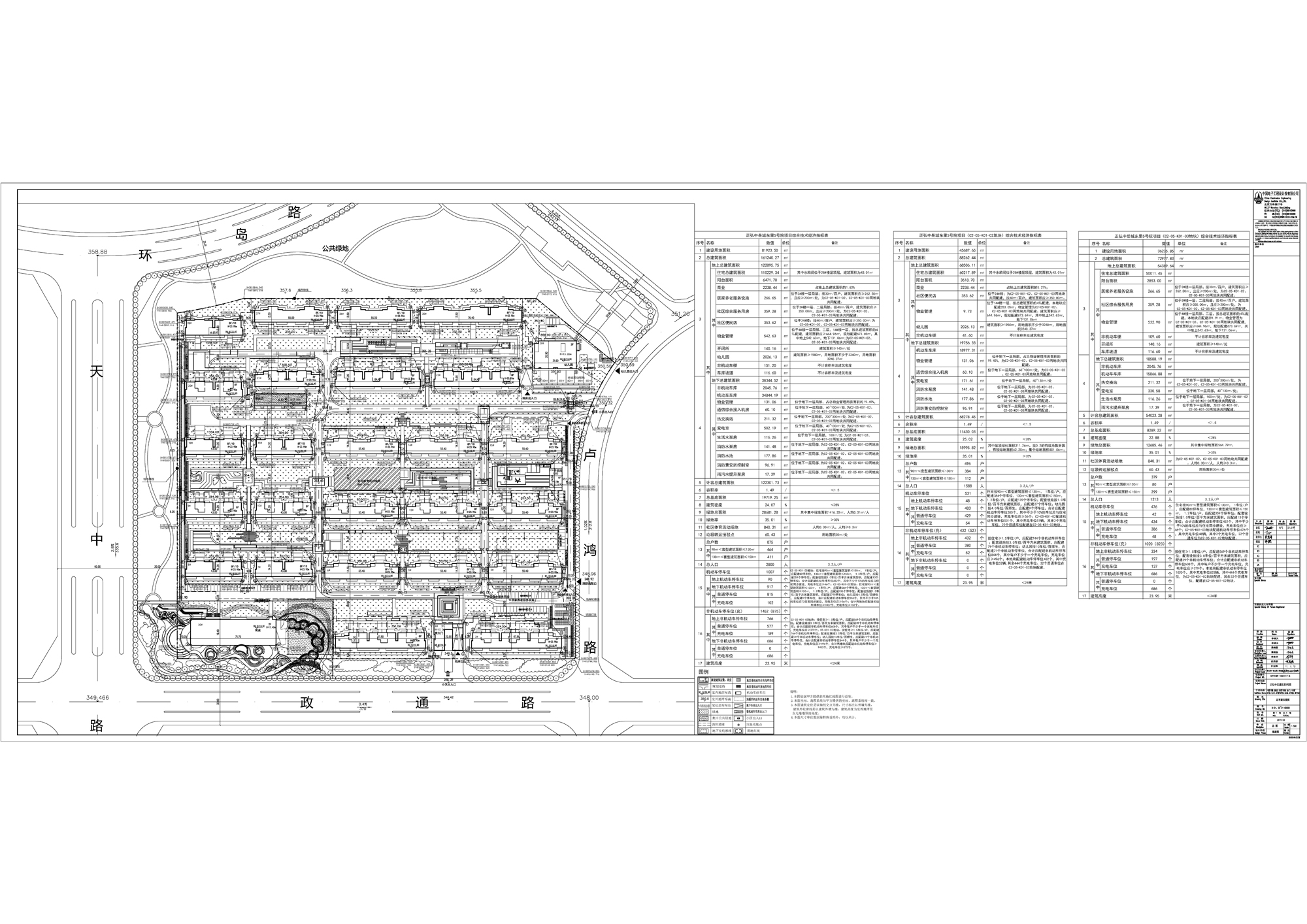
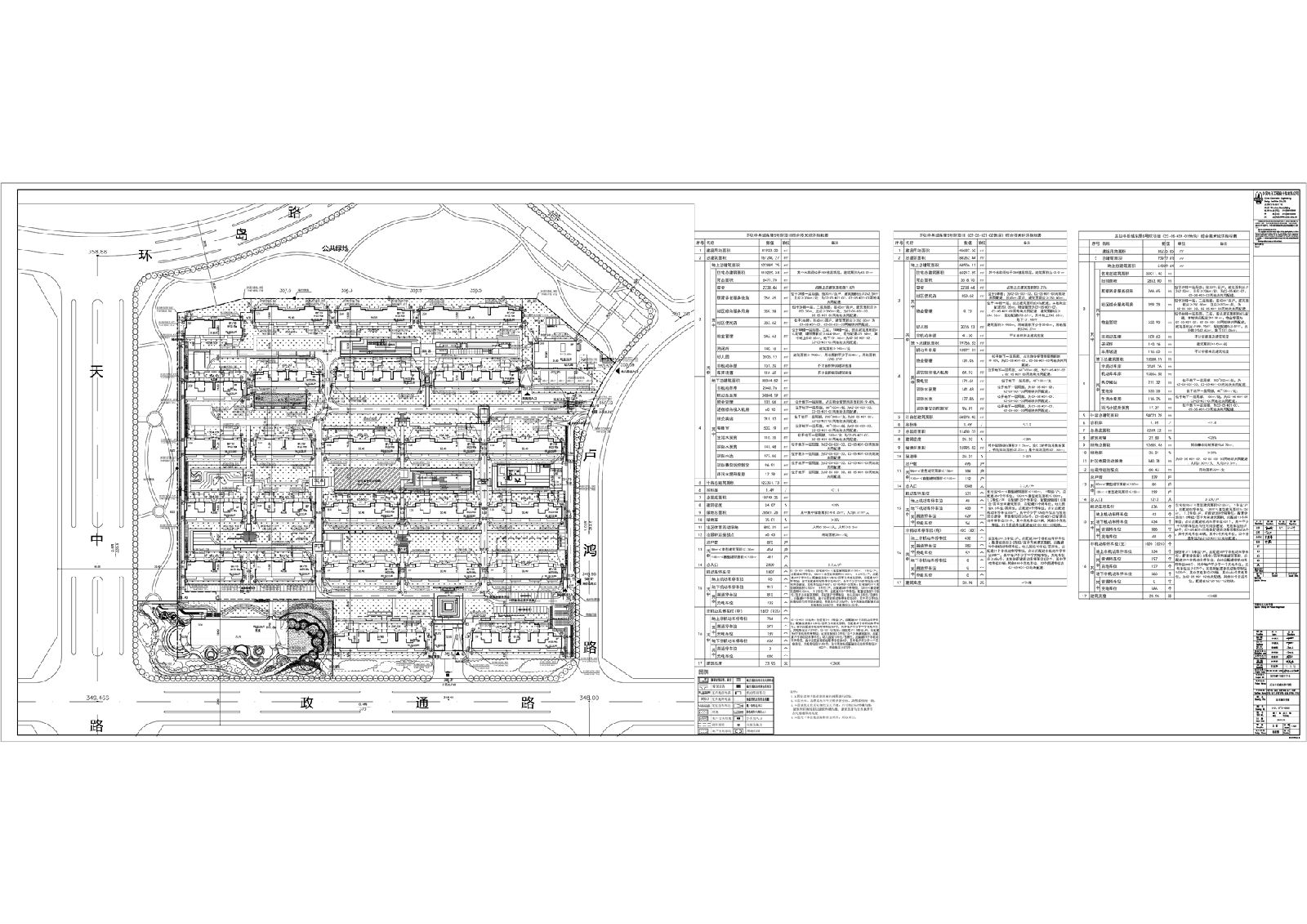
项目名称: 正弘中岳城东里5号院
类 型 : 批前公示
公示类别: 建设工程(建筑)规划许可证公示
建设地点: 登封市环岛路与天中路交叉口东南角
总用地面积: 81923.50㎡
总建筑面积: 161240.27㎡
建筑密度:24.07%
容 积 率: 1.49
绿 地 率: 35.01%
机动车停车位:1007个
C2-05-K01-02地块
用地面积: 45687.65㎡
总建筑面积:88262.44㎡
建筑密度:25.02%
容 积 率: 1.49
绿 地 率: 35.01%
机动车停车位:531个
C2-05-K01-03地块
用地面积:36235.85㎡
总建筑面积:72977.83㎡
建筑密度:22.88%
容 积 率: 1.49
绿 地 率: 35.01%
机动车停车位:476个
公示期限: 10日
公示日期: 2019年5月30日至2019年6月8日
经办科室: 行政服务科
咨询电话: 62865928
附加说明: 依据《城乡规划法》、《行政许可法》、《河南省城市规划公示制度》等有关法律法规,特此公示。如有意见和建议,请于公示时间内向我局反馈
详细内容: 总平面图、鸟瞰图、日照分析、单体效果图(点击图片查看大图)
