项目名称:《登封市大冶工业集聚区F-16地块控制性详细规划》
类 型:批前公示
公示类别:控制性详细规划
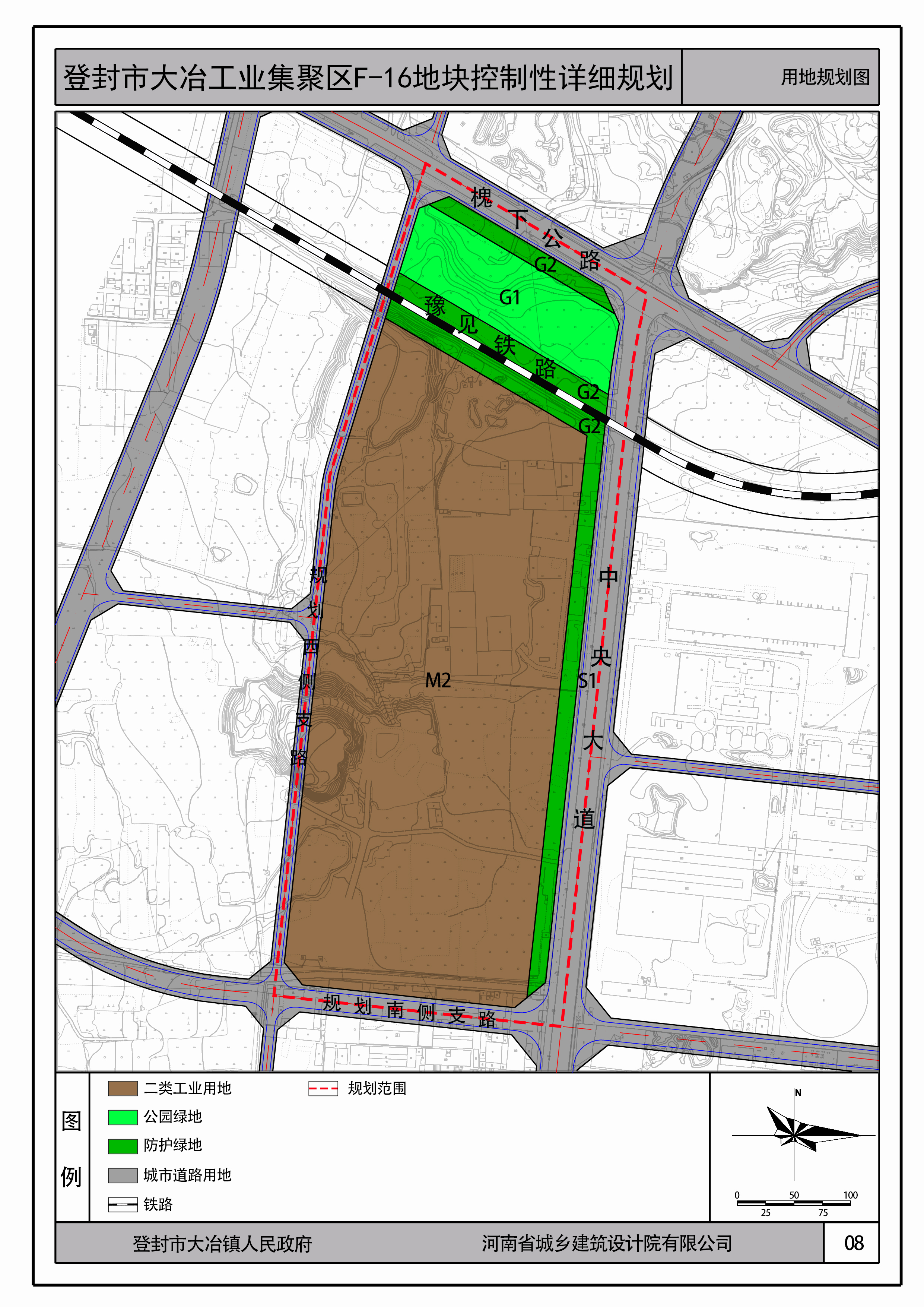
用地位置:本次规划地块位于大冶工业集聚区北部,中央大道西侧,槐下公路南侧。
规划面积:规划总用地面积17.40公顷。
公示期限:30日(2020年11月20日—2020年12月19日)
公示单位:登封市自然资源和规划局
咨询电话:0371-62875678
公示单位:大冶镇人民政府
咨询电话:0371-62930154
附加说明:查询详细内容,请到登封市自然资源和规划局查询,依据《城乡规划法》、《河南省城市规划公示制度》等有关法律法规,特此公告。





