• MB1605570/2021-00175
  • 登封市自然资源和规划局
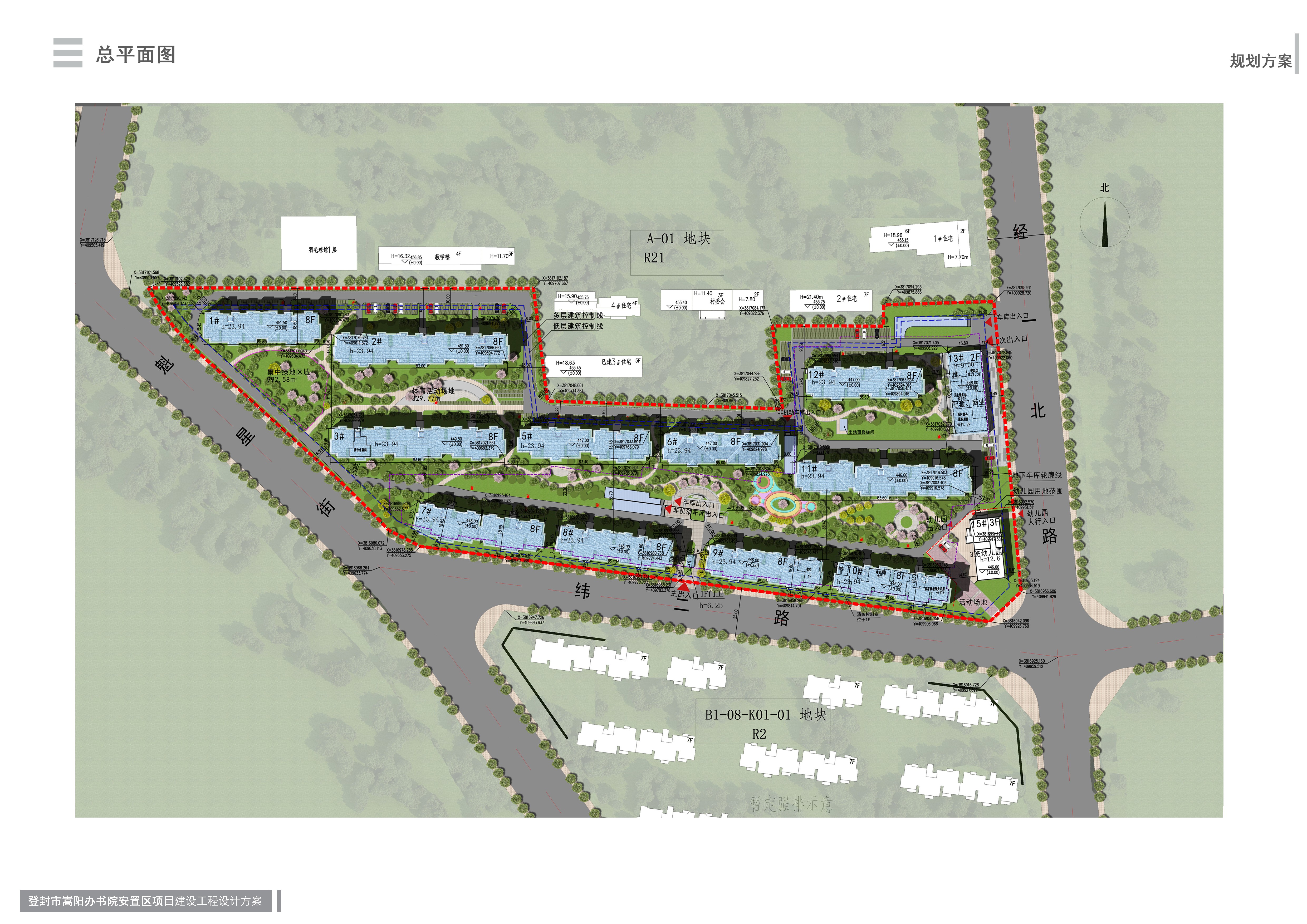
  • 嵩阳办书院安置区
  • 2021-08-04
  • 2021-08-04
  • 2021-08-04
  • 2021-08-13
自然资源和规划局关于登封市嵩阳办书院安置区项目建设工程设计方案的公示

为确保该规划的顺利实施,维护全社会对城市规划的知情权与监督权,使城市规划更加科学、合理和规范,保证城市建设的健康运行,现将建设工程设计方案进行公示,欢迎社会各界对该项目规划提出宝贵意见和建议。

咨询电话:

建设单位    15903615333

详细规划管理科    0371-62989067


1.总平面图  2.指标表  3.鸟瞰图  4-7.材质分析  8.日照分析

主办单位:登封市人民政府办公室 地址:登封市少林大道18号 邮编:452470