• MB1605570/2021-00224
  • 登封市自然资源和规划局
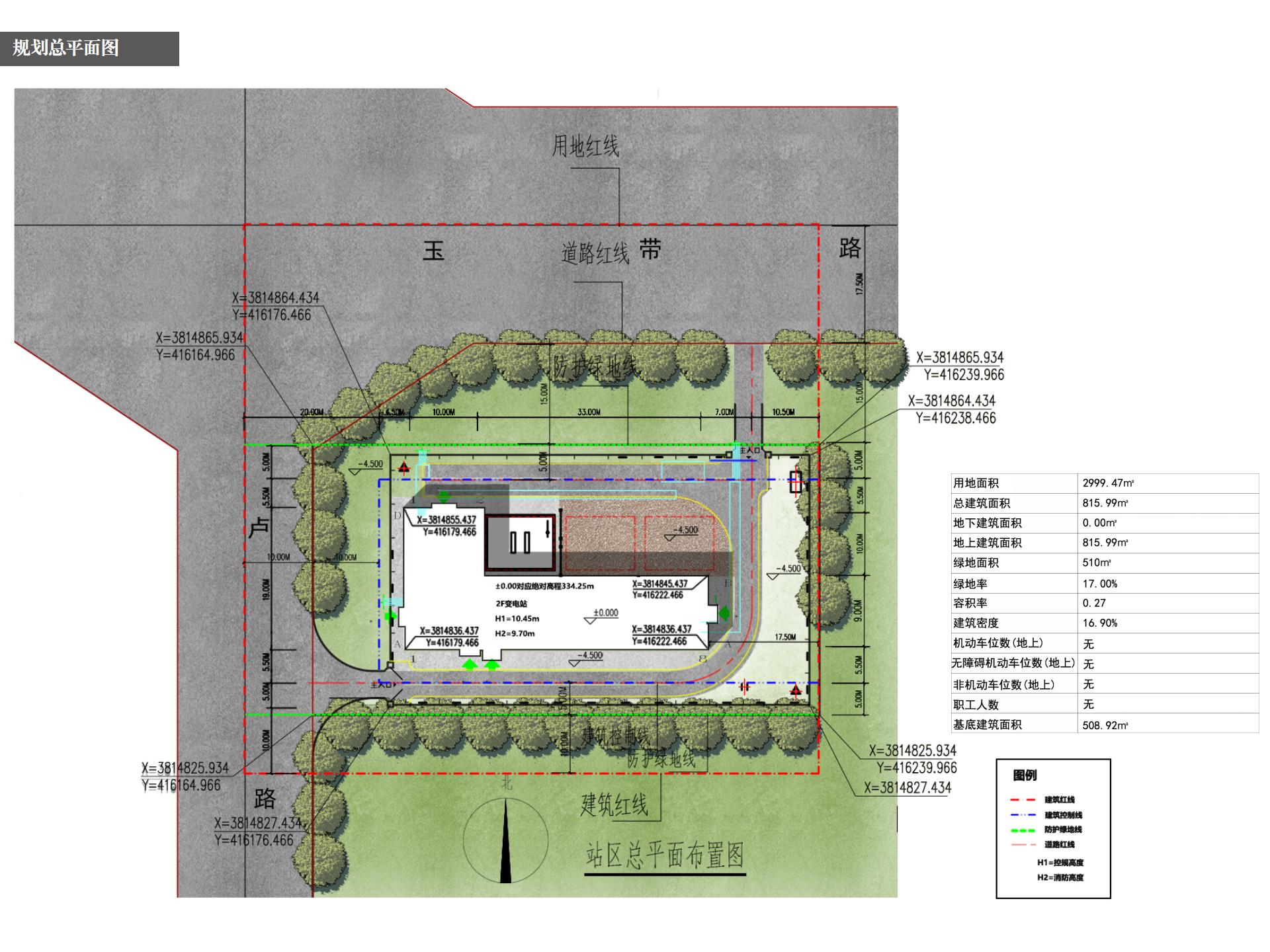
  • 城东110千伏输变电站
  • 2021-09-28
  • 2021-09-28
  • 2021-09-28
  • 2021-10-07
自然资源和规划局关于登封市城东110千伏输变电站项目建设工程设计方案的公示

为确保该规划的顺利实施,维护全社会对城市规划的知情权与监督权,使城市规划更加科学、合理和规范,保证城市建设的健康运行,现将建设工程设计方案进行公示,欢迎社会各界对该项目规划提出宝贵意见和建议。

咨询电话:

建设单位    13203732567

详细规划管理科    0371-62989067


1.鸟瞰图  2.材质分析  3.总平面图和指标表  

主办单位:登封市人民政府办公室 地址:登封市少林大道18号 邮编:452470