• MB1605570/2022-00107
  • 登封市自然资源和规划局
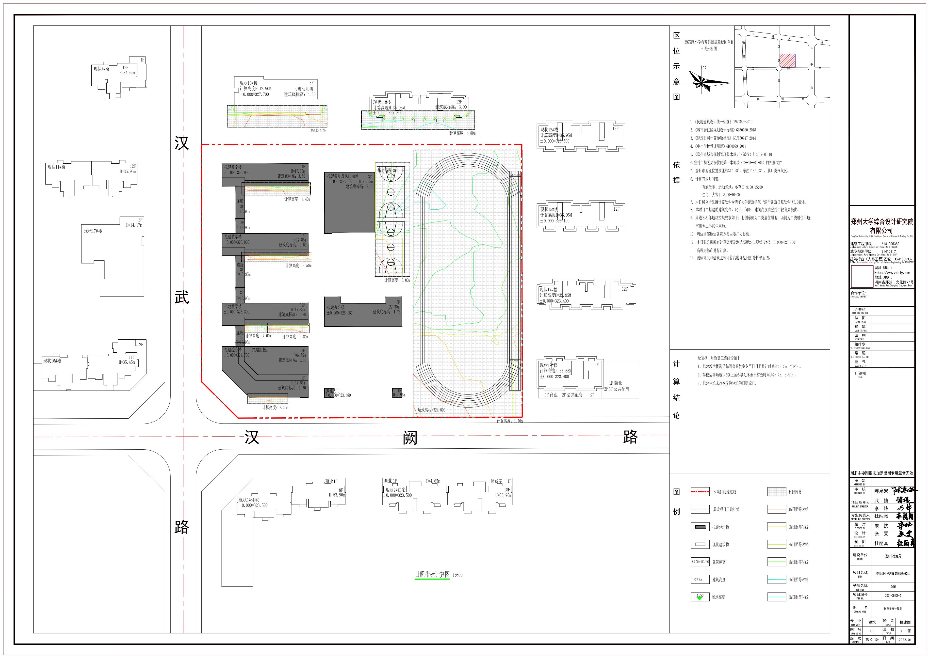
  • 崇高路小学嵩颍校区
  • 2022-01-29
  • 2022-01-29
  • 2022-01-29
  • 2022-02-07
登封市自然资源和规划局关于崇高路小学教育集团嵩颍校区建设工程设计方案的公示

为确保该规划的顺利实施,维护全社会对城市规划的知情权与监督权,使城市规划更加科学、合理和规范,保证城市建设的健康运行,现将建设工程设计方案进行公示,欢迎社会各界对该项目规划提出宝贵意见和建议。

咨询电话:

建设单位    15515652369

详细规划管理科    0371-62989067

1.总平面图及指标表  2.鸟瞰图  3.材质分析  4.日照分析

主办单位:登封市人民政府办公室 地址:登封市少林大道18号 邮编:452470